• Croatian (HR)Croatian
  • English (en)English
Skip to content
  • Home
  • O nama
    • HGD
    • Upravni odbor
      • Upravni odbor HGD-a od 29.06.2021. do 7.10.2025.
      • Upravni odbor HGD-a od 13.12.2016. do 29.06.2021.
      • Članovi Upravnog odbora HGD-a od 29.06.2021. do 7.10.2025.
      • Upravni odbor od 26.11.2012. do 13.12.2016.
      • Upravni odbor do 26. studenog 2012.
    • Misija i ciljevi HGD-a
    • Statut
    • Predsjednik i tajnik HGD-a
      • Predsjednik i tajnik HGD-a od 13.12.2016. do 29.06.2021.
      • Predsjednik i tajnik HGD od 2012. do 2016.
    • Prije osamostaljenja Republike Hrvatske
    • Hrvatska udruga za mehaniku stijena
    • Hrvatsko geotehničko društvo (HGD) <<< Hrvatska udruga za mehaniku tla i geotehničko inženjerstvo (HUMTGI) <<< Hrvatsko društvo za mehaniku tla i temeljenje (HDMTT) <<< Društvo za mehaniku tla i temeljenje Hrvatske (DMTTH)
      • HUMTGI od svibnja 2000. do prosinca 2001.
      • HUMTGI od 2002. do 2004.
      • HUMTGI od svibnja 2004. do siječnja 2006.
      • HGD od siječnja 2006. do svibnja 2008.
      • HGD od do svibnja 2008. do studenog 2012.
      • HGD od studenog 2012. do prosinca 2016.
    • Ove stranice: vizija, ciljevi
    • Od 2011. to 2015. potpredsjednik ISRM: prof. dr.sc. Ivan Vrkljan
    • Od 2013. do 2017. članica Upravnog odbora ISSMGE, prof.dr.sc. Vlasta Szavits-Nossan
    • Profesor dr.sc. Mladen Garašić u međunarodnim speleološkim društvima
  • Članstvo
    • Postajanje članom HGD-a, promjena podataka, napuštanje članstva
    • Plaćanje članarine
    • Kolektivni članovi HGD-a
    • Zaslužni članovi HGD-a
  • Glasnik
    • Glasnici Hrvatskog društva za mehaniku tla i temeljenje >>> Hrvatske udruge za mehaniku tla i geotehničko inženjerstvo od 1992. do 2000. godine
    • Uredništvo glasnika HGD-a
    • Prof.dr. Ervin Nonveiller: MINIRANA JE NASUTA BRANA PERUČA
    • Godina 2016 broj 1
    • Godina 2017 broj 2
    • Godina 2017 broj 3
    • Godina 2018 broj 4
    • Godina 2018 broj 5
    • Godina 2019 broj 6
    • Godina 2019 broj 7
    • Godina 2023 broj 8
    • Godina 2023 broj 9
    • Godina 2024 broj 10
    • Glasnik 2025 broj 11
  • Savjetovanja
    • 9th International Conference on Earthquake Geotechnical Engineering
    • Split 2026
      • Split 2026 TEME SAVJETOVANJA
      • SPLIT 2026 Program
      • SPLIT 2026 Važni datumi
      • SPLIT 2026 Mjesto održavanja
      • Split 2026 KOTIZACIJA
      • Split 2026 SAVJETODAVNI ODBOR
      • Split 2026 ORGANIZACIJSKI ODBOR
      • Split 2026 ZNANSTVENI ODBOR
      • Split 2026 SMJEŠTAJ
      • Split 2026 KONTAKT
    • 29. European Young Geotechnical Engineers Conference
    • SISAK 2023
      • SISAK 2023 Program
      • SISAK 2023 ZBORNIK RADOVA
        • SISAK 2023 – web verzija zbornika radova
      • SISAK 2023 – WEB VERSION OF THE PROCEEDINGS
      • SISAK 2023 FOTOGRAFIJE
      • SISAK 2023 – POTVRDE ZA SUDIONIKE
      • SISAK 2023 SPONZORI
      • SISAK 2023 – PODUPIRUĆE ORGANIZACIJE
      • SISAK 2023 Kontakt
      • SISAK 2023 Lokacija i smještaj
      • SISAK 2023 Organizacijski odbor
      • SISAK 2023 Savjetodavni odbor
      • SISAK 2023 Gosti predavači
      • SISAK 2023 Znanstveni odbor
      • SISAK 2023 Članci, prezentacije, posteri, važni datumi i prijave
      • Stručna ekskurzija u subotu, 6. svibnja
      • Kako doputovati do Siska
      • SISAK 2023 Izložba i sponzori
      • SISAK 2023 Kotizacija
      • Zašto Sisak? Zašto Petrinja?
    • OMIŠ 2019
      • OMIŠ 2019 Neke fotografije
      • Omiš 2019 ZBORNIK RADOVA
      • GEOTEHNIČKI IZAZOVI U KRŠU
      • Omiš 2019 PROGRAM KONFERENCIJE
      • OMIŠ 2019 Kako stići od splitske zračne luke do Omiša
      • OMIŠ 2019 Što se može vidjeti u okolini
      • Omiš 2019 KONTAKT
      • Omiš 2019 SPONZORI I IZLAGAČI
      • Omiš 2019 ORGANIZACIJSKI ODBOR
      • Omiš 2019 ZNANSTVENI ODBOR
      • Omiš 2019 SMJEŠTAJ
      • Omiš 2019 KOTIZACIJA
      • Omiš 2019 PLAKAT
      • Omiš 2019 POSTERI 12.04.2019. 11:00 – 11:30
      • Omiš 2019 POSTERI 12.04.2019. 16:15 – 16:45
      • Omiš 2019 POSTERI 13.04.2019. 10:15 – 10:45
      • Omiš 2019 PRIJAVE I VAŽNI DATUMI
    • VARAŽDIN 2016
      • Varaždin 2016 ZBORNIK RADOVA – verzija online
      • Poziv na 7. savjetovanje Hrvatskog geotehničkog društva s međunarodnim sudjelovanjem
      • Varaždin 2016 PLAKATI
      • Mjesto održavanja
      • Varaždin 2016 – prezentacije
      • Program
        • Varaždin 2016 – PETAK, 11.11.2016.
        • Varaždin 2016 – SUBOTA, 12.11.2016.
      • Važni datumi
      • Sponzori i izlagači
      • Organizacijski odbor
      • Znanstveni odbor
      • Kotizacija
      • Smještaj
      • Varaždin 2016 – suorganizatori
      • Varaždin 2016 u medijima
      • Kontakt
      • Varaždin 2016 – zbornik radova
      • Varaždin 2016 – fotografije
      • Varaždin 2016 – anketa nakon savjetovanja
    • ZADAR 2013
      • Zadar 2013 ZBORNIK RADOVA
    • Eurock 2009
      • Eurock 2009 POPIS OBJAVLJENIH RADOVA
    • OSIJEK 2009
      • Osijek 2009 OBJAVLJENI RADOVI
    • The 17th European Young Geotechnical Engineers’ Conference ZAGREB 2006
      • Zagreb 2006 OBJAVLJENI RADOVI
    • OPATIJA 2006
      • Opatija 2006 OBJAVLJENI RADOVI
    • HVAR 2002
      • Hvar 2002 OBJAVLJENI RADOVI
    • XI Podunavska konferencija POREČ 1998
      • POREČ 1998 Popis objavljenih radova
    • VARAŽDIN 1995
      • Varaždin 1995 OBJAVLJENI RADOVI
    • NOVIGRAD 1994
      • Novigrad 1994 OBJAVLJENI RADOVI 1
      • Novigrad 1994 OBJAVLJENI RADOVI 2
    • OPATIJA 1989
      • Opatija 1989 OBJAVLJENI RADOVI
  • Radionice i stručne ekskurzije
    • Most Pelješac: ekskurzija 22.-23.03.2019. i ostalo
    • Stručna ekskurzija na klizište u Hrvatskoj Kostajnici 28.09.2018.
    • Radionica ISRM u Zagrebu 03.03.2016.
      • Sponzori
      • Poruka predsjednice ISRM, Međunarodnog društva za mehaniku stijena, i predsjednika Hrvatskog geotehničkog društva
      • Hotel Westin offers special prices for the attendees of the ISRM Workshop
    • II. radionica Hrvatskih voda i Hrvatskog geotehničkog društva
    • I. radionica Hrvatskih voda i Hrvatskog geotehničkog društva
    • TECHNICAL MEETING TC207 – Soil-structure interaction and retaining walls – DUBROVNIK 2011
      • Dubrovnik 2011 OBJAVLJENI RADOVI
    • Stručno putovanje HGD-a na gradilišta nasipa nakon poplave
    • Nick Barton, Zagreb, 2-4.6.2011.
      • Dr. Nick Barton
      • Dr. Nick Barton, 2.6.2011. Plaćanje kotizacije.
      • Rock engineering for tunnels (drill-and-blast and TBM), pre-grouting, caverns, dam abutments, rock slopes and rockfill
    • Primjena Eurokoda 7 u inženjerskoj praksi 14.4.2011.
    • Workshop o Eurokodu 7, Cavtat 2007
    • Sudjelovali naši članovi
  • Okrugli stol
    • Okrugli stol Edukacija u geotehnici za građevinare
    • 4. Novi zakonski okviri za geotehničko projektiranje i prethodna istraživanja/ispitivanja
    • 3. Prijedlog europske klasifikacije tla
    • 2. Parametri tala, stijena i stijenskih masa u geotehničkom projektiranju
    • 1. Uloga inženjerske geologije u geotehnici
  • Nonveiller
    • Pregled svih Nonveiller Lectures
    • Profesor Ervin Nonveiller o sebi
    • Monografija o profesoru Nonveilleru
      • OSIGURAJTE SVOJ PRIMJERAK MONOGRAFIJE ERVIN NONVEILLER – učitelj i inženjer UPLATOM DONACIJE UDRUZI HGD
    • 21. Nonveiller Lecture: Profesor dr.sc. Lyesse Laloui
    • 20. Nonveiller Lecture: profesor dr.sc. Miško Čubrinovski
    • 19. Nonveiller Lecture: profesor Janko Logar
    • 18. Nonveiller Lecture: profesor Dietmar Adam
    • 17. Nonveiller Lecture: profesor Giovanni Barla, 12.04.2019.
      • (English) Abstract of the 17th Nonveiller lecture
    • 16. Nonveiller Lecture: profesor Kerry Rowe 15.05.2018.
    • 15. Nonveiller Lecture: profesor Atilla Ansal 25.10.2017.
    • 14. Nonveiller Lecture: profesor Paul W. Mayne 5.10.2016.
    • 13. Nonveiller Lecture održao je profesor Mladen Vučetić
    • 12. Nonveiller Lecture održao je Profesor Kenji Ishihara
  • I još….
    • Klizišta u Hrvatskoj – prijava klizišta i karta klizišta
    • Potresno geotehničko inženjerstvo
    • Eurokod 7
    • Literatura objavljena u Republici Hrvatskoj
      • Knjige iz područja tunelogradnje
    • Terzaghi u Hrvatskoj
    • Knjige koje je napisao profesor Ervin Nonveiller
    • Tražite li stipendiju za doktorat?
      • PhD position at University Grenoble Alpes
    • Međunarodna društva
    • Branimir Müller, 1934-2016
    • 14.09.2022. doktorirala Olja Barbir na TU Wien
    • 25.11.2013. doktorirala Ingrid Tomac na Colorado School of Mines
  • Kontakt

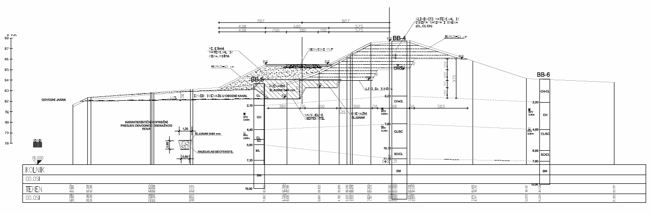
Detalji sanacije nasipa u Bošnjacima

By Sonja Zlatović | Published 29/04/2015 | Full size is 1336 × 440 pixels

Prikaz alternativnog rješenja sanacije nasipa uzvodno od odrona
Presjek nasipa kod Rajevog sela s prikazom elemenata sanacije
Bookmark the permalink.
  • Hrvatsko Geotehničko Društvo / Croatian Geotechnical Society, Berislavićeva 6, 10000 Zagreb, Hrvatska / Croatia
  • HOME
  • Članstvo
  • O nama
  • Glasnik
  • Savjetovanja
  • Radionice i stručne ekskurzije
  • Okrugli stol
  • Nonveiller
  • Zanimljivosti
  • Kontakt
  • Jezik: Croatian
    +
    • Croatian Croatian
    • English English
  • Varaždin 2016 PLAKATI
  • Nonveiller
  • SPLIT 2026 Važni datumi
  • Split 2026 ZNANSTVENI ODBOR